Ponte Nelle Alpi - Unifamiliare Casa singola
Rif. 722-13
€ 210.000
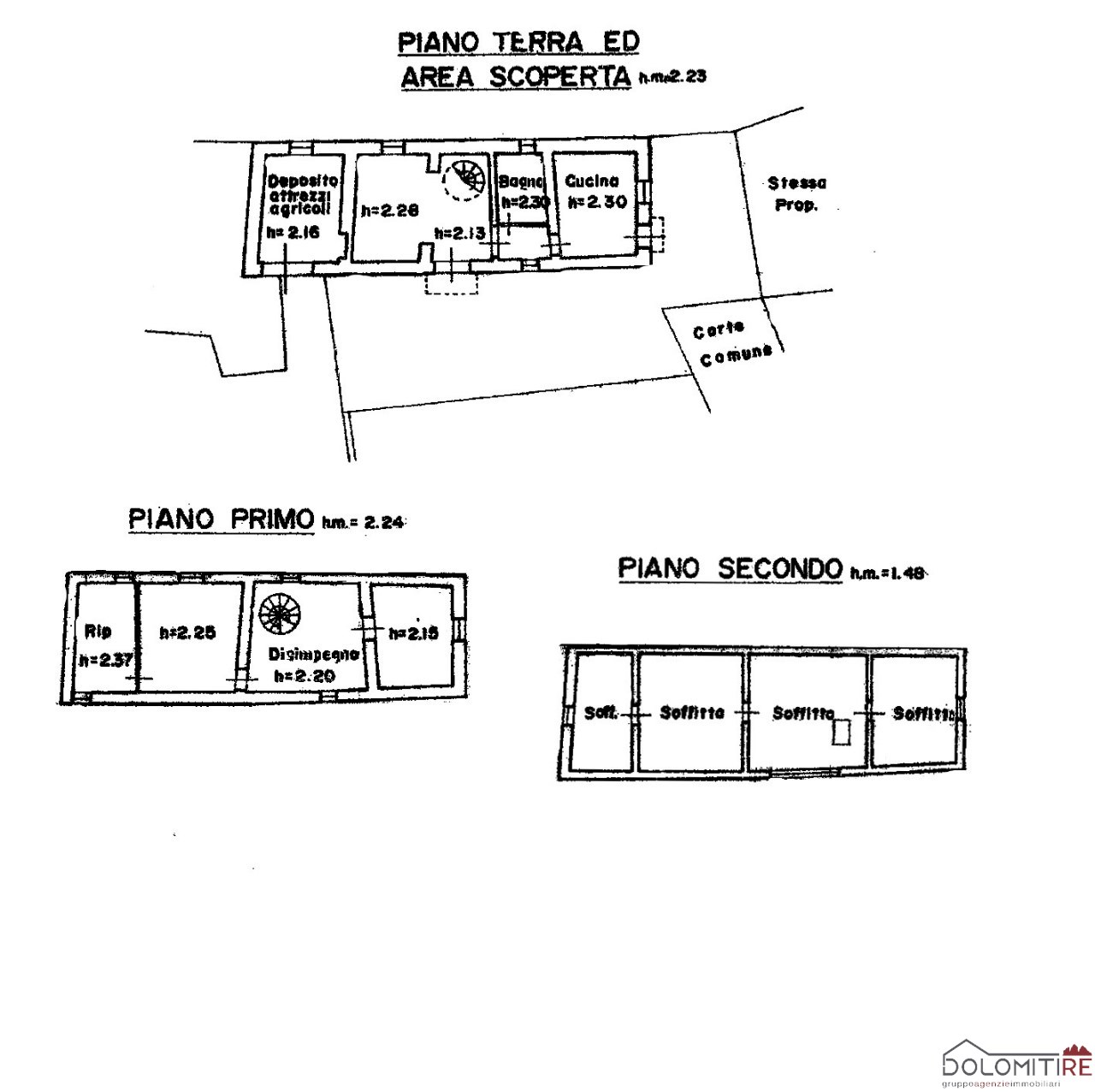
Indirizzo : RONCAN - Ponte Nelle Alpi VENDITA - A Ponte nelle Alpi, frazione Roncan, bella abitazione singola di 178 MQ, con ampio giardino soleggiato e ben esposto. Al piano terra si trovano la cucina, il soggiorno, il bagno ed un deposito attrezzi, al piano primo vi sono un ampio disimpegno, due camere ed una stanza ad uso studio/guardaroba, al secondo piano si trovano quattro locali. L'immobile si presenta in ottimo stato ed è stato oggetto di vari interventi di manutenzione straordinaria. E' stato installato impianto fotovoltaico sia per il riscaldamento, sia per la produzione di acqua calda sanitaria e di sostituzione di tutti gli infissi, che miglioreranno notevolmente il rendimento energetico. Si trova in una posizione molto soleggiata, ben esposta ed a breve distanza dagli impianti di risalita del Nevegal e dal lago di S. Croce.
Dettagli :
| Condizioni della proprieta' | Buono |
|---|---|
| Numero di stanze | 6 |
| Numero di camere da letto | 2 |
| Numero di piani | 3 |
| Numero di bagni | 1 |
| Tipo di riscaldamento | autonomo |

