Ponte Nelle Alpi - Appartamento

Rif. 804-13

111.000

Indirizzo : RIONE SANTA CATERINA - Ponte Nelle Alpi

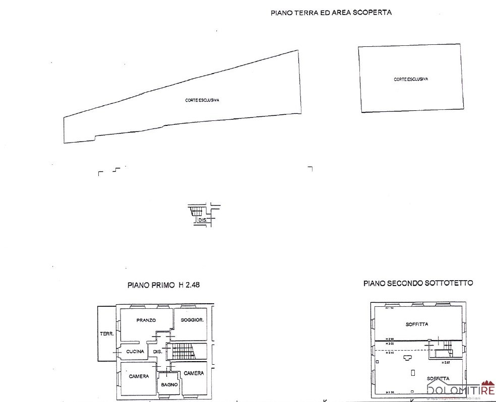
Località Santa Caterina - Appartamento al piano primo, in buone condizioni generali, già abitabile, in quanto oggetto di alcuni interventi di rinnovamento nel corso degli anni, composto da ingresso, cucina e zona pranzo-soggiorno con caminetto, tre camere, bagno con vasca e doccia, ampio terrazzo. Dispone di portoncino blindato e di infissi recenti con vetrocamera. Della proprietà fanno parte una spaziosa soffitta, della superficie dell'appartamento, facilmente raggiungibile da una scala esclusiva e due comodi posti auto scoperti esclusivi. No spese condominiali

Dettagli :

Condizioni della proprieta' Buono
Numero di stanze 5
Numero di camere da letto 3
Numero di piani 1
Numero di bagni 1
Tipo di riscaldamento nd

Conforts :

  • TerrazzoAbitabile
  • Soggiorno
  • postoauto
  • Soffitta
  • cucina
  • Geolocalizzazione :

    Richiesta contatto

    Nome(*)
    Please let us know your name.
    Email(*)
    Please let us know your email address.
    Telefono(*)
    Invalid Input
    Messaggio
    Please let us know your message.
    Privacy(*)
    Invalid Input
    (*)

    Invalid Input

    Torna alla lista