Longarone - Locale commerciale Negozio

Rif. 788-13

430.000

Indirizzo : via Roma - Longarone

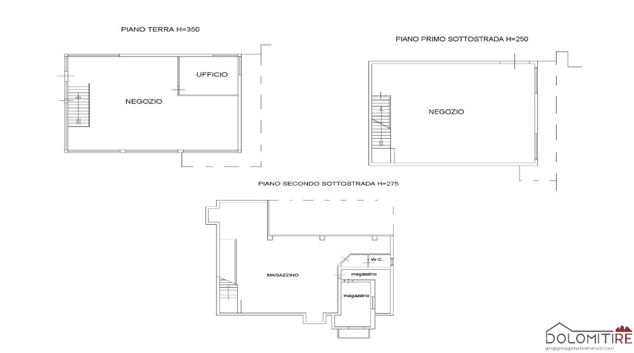
Nel centro di Longarone, in posizione ben visibile e con ampie vetrine che affacciano sulla strada principale, proponiamo in vendita un edificio ad uso commerciale-residenziale, costituito da negozio con ufficio al piano terra, negozio al piano primo sottostrada, magazzini, anti w.c. e w.c. e garage al piano secondo sottostrada. Al piano primo si trova l'appartamento, completamente ristrutturato, caratterizzato da ampi spazi e composto da ingresso, cucina-soggiorno, camera matrimoniale, camera doppia, locale ad uso ripostiglio-guardaroba, ulteriore ripostiglio, bagno principale, bagno di servizio e terrazza su due lati. Nessuna spesa di condominio. A.P.E. appartamento: classe F - indice prestazione energetica non rinnovabile EPgl,nren KWh/mq anno 161,49 - indice prestazione energetica rinnovabile EPgl,ren KWh/mq anno 0,80

Dettagli :

Condizioni della proprieta' Ottimo
Numero di stanze 4
Numero di piani 4
Numero di bagni 3
Tipo di riscaldamento autonomo

Conforts :

  • garage
  • Ripostiglio
  • Geolocalizzazione :

    Richiesta contatto

    Nome(*)
    Please let us know your name.
    Email(*)
    Please let us know your email address.
    Telefono(*)
    Invalid Input
    Messaggio
    Please let us know your message.
    Privacy(*)
    Invalid Input
    (*)

    Invalid Input

    Torna alla lista