Longarone - Locale commerciale Negozio
Rif. 789-13
€ 260.000
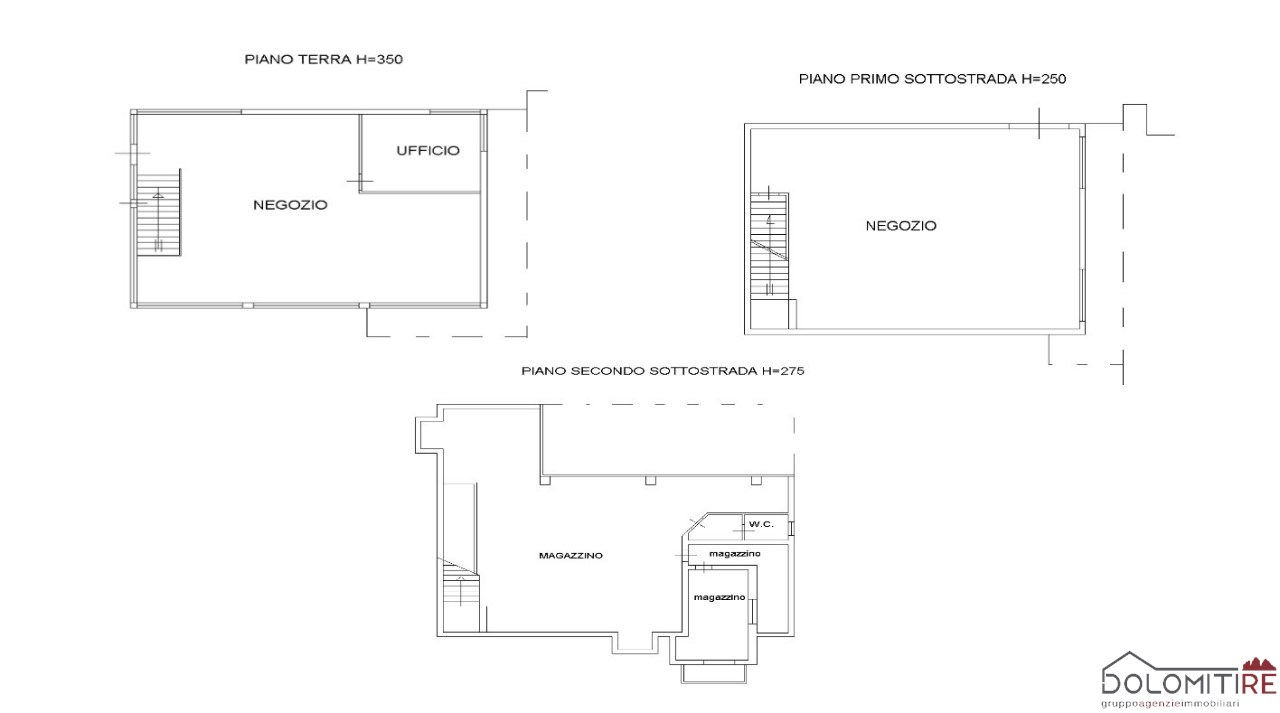
Indirizzo : via Roma - Longarone Nel centro di Longarone, in posizione ben visibile e con ampie vetrine che affacciano sulla strada principale, proponiamo in vendita unità ad uso commerciale-direzionale, costituito da negozio con ufficio al piano terra, negozio al piano primo sottostrada, magazzini, anti w.c. e w.c. al piano secondo sottostrada. Nessuna spesa di condominio.
Dettagli :
| Condizioni della proprieta' | Ottimo |
|---|---|
| Numero di stanze | 4 |
| Numero di piani | 3 |
| Numero di bagni | 1 |
| Tipo di riscaldamento | nd |

